Architekturbüro B.M EYERHOFER GmbH
Am
Markt 20, Eingang Schulbruck, 93077 Bad Abbach
Tel.
09405/9620-10 Fax. 09405/9620-11
E-Mail:
Meyerhofer.Berthold@t-online.de
Projektbilder
Die Bildergalerie stellt nur einen kleinen Ausschnitt
der bearbeiteten Bauvorhaben dar.
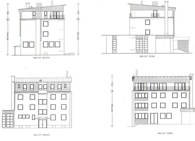
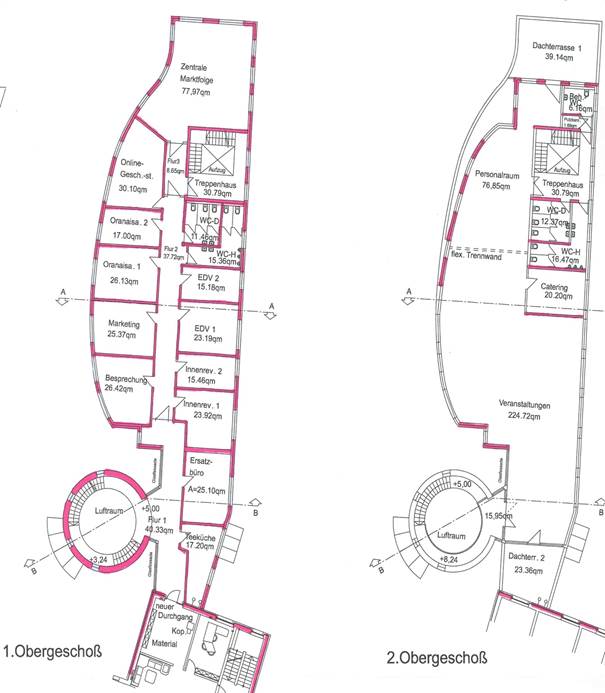
Sanierung Gewerbe- und Wohngebäude im Zentrum von Bad
Abbach
|
Konzeptstudie |
|
|
|
|
mit Praxis …. |
….und Gastronomie |
|
…und mit Büro |
Büro vor der Sanierung |
Einfamilienhaus in Bad Abbach
|
|
|
|
|
|
Dorfgasthaus Lehner in Pentling –
Poign,
mit Wohnungen, Fremdenzimmern,
Schießstand, Räucherkammer,
Schlachtraum und Abwasserteich
|
|
|
|
|
|
Geschosswohnungsbau mit 31
Wohneinheiten in Bad Abbach

während der Bauphase


nach der Fertigstellung
Einfamilienhaus in Steinach bei
Straubing
|
|
|
Einfamilienhaus in Deuerling
|
|
|
Verschiedene individuell geplante
Fertighäuser
für die Fa. STREIF
|
in Teugn |
in Regen |
|
in Eßlarn |
in Hohenwarth |
|
in Loisnitz |
in Altenthann |
|
in Bogen bei der Montage …. |
…..und nach der Fertigstellung |
Sanierung der Gärtnerei-Schloßmauer
in Alteglofsheim
|
|
|
|
|
|
|
|
|
Dachaufstockung auf ein bestehendes
Gebäude
mit einem Fertighaus der Fa. Lux

|
|
|
|
Aufgestocktes Gebäude in Regensburg….. |
…..und späterer Büroanbau |
Neubau eines Autohauses in Kelheim
als Stahlkonstruktion

|
|
|

Freiflächenerweiterung des
Kindergartens Pentling - Großberg
|
|
|
St.-Katharinen-Spital in Regensburg:
Neugestaltung des Eingangsbereichs am
nördlichen Brückenkopf der
Steinernen Brücke
mit Rampe, Uferbefestigung, vorbereitetem
Hochwasserschutz und Treppenanlage in die Donauauen


|
|
|


Renovierung des italienischen
Restaurants „La Gondola“ in Regensburg
|
|
|
|
|
|
|
|
Entwurf für ein Gewerbeobjekt in
Teugn
|
|
|
|
Nachträglicher Einbau eines Balkons
in Stahlkonstruktion in Bad Abbach
|
|
|
|
|
Neubau eines Blockbohlenhauses mit 2
Wohneinheiten in Niedrigenergiebauweise
in Pentling bei Regensburg
|
|
Westen |
|
Erdgeschoß |
Süden und Westen |
|
Dachgeschoß |
EG-Flur |
|
Technikzentrale: Pufferspeicher
mit Trinkwasser- und Solarstation (Röhrenkollektoren), 2
kontrollierte Wohnungslüftungen (Zuluft über 50m Erdkollektor, in der
Baugrube verlegt) |
Bad im DG |
Neubau einer Hausgruppe aus 3 Wohngebäuden in Sinzing
bei Regensburg

Grundriss Erdgeschoß


Realisierungswettbewerb
Raiffeisenbank Bad Abbach
in Zusammenarbeit mit
Landschaftsarchitektin Frau Inge Dunkel-Littel, Langquaid




Neubau eines Wohnhauses mit 3 Wohneinheiten in Pentling

Erdgeschoß

Ansicht Osten mit Neubauplanung Nachbar

Neubau eines Wohnhauses in Kallmünz
|
|
|

Neubau eines Wohnhauses in Spanien

|
|
|
|
|
|

Renovierung eines Wohnhauses in Regensburg
|
Wohnraum
während der Bauphase |
........und nach Fertigstellung |
|
DG-Ausbau |
Wohnraum nach Fertigstellung mit Kaminofen |
|
DG-Ausbau |
ausgebautes
Dachgeschoß |
|
DG-Ausbau |
neues Bad |
|
Straßenansicht
während der Bauphase |
Straßenansicht nach
Fertigstellung |
|
Gartenseite |
neuer
Eingangsbereich |
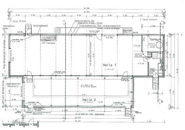
Wiederaufbau einer Industriehalle für
Galvanik in Regenstauf
Bei einem Brand im Juli 2017 wurden die Hallen eines
Galvanikbetriebes zerstört
|
Die beiden Hallen wurden bei einem Brand im Juli 2017 zerstört
Zerstörte technische Anlagen |
Errichtung einer Notbedachung auf Halle 2
Zerstörungen in der Halle 1 |
|
Neuplanung der beiden Hallen – Ansichten
|
|
|
Neuplanung - Grundriss
|
Renovierung eines Wohnhauses in Regensburg
|
Wohnraum vor der Renovierung
Schlafraum vor der Renovierung
Südfassade vor der Renovierung
Treppenhaus nach Ertüchtigung
des Geländers
Flur im Erdgeschoß |
Wohnraum nach der Renovierung
Schlafraum nach der Renovierung
Südfassade nach der Renovierung
Nordfassade
Flur im Obergeschoß |
Modifiziert: 10.02.2023